-> Doppelklicken auf den Plan zum vergrössern / verkleinern

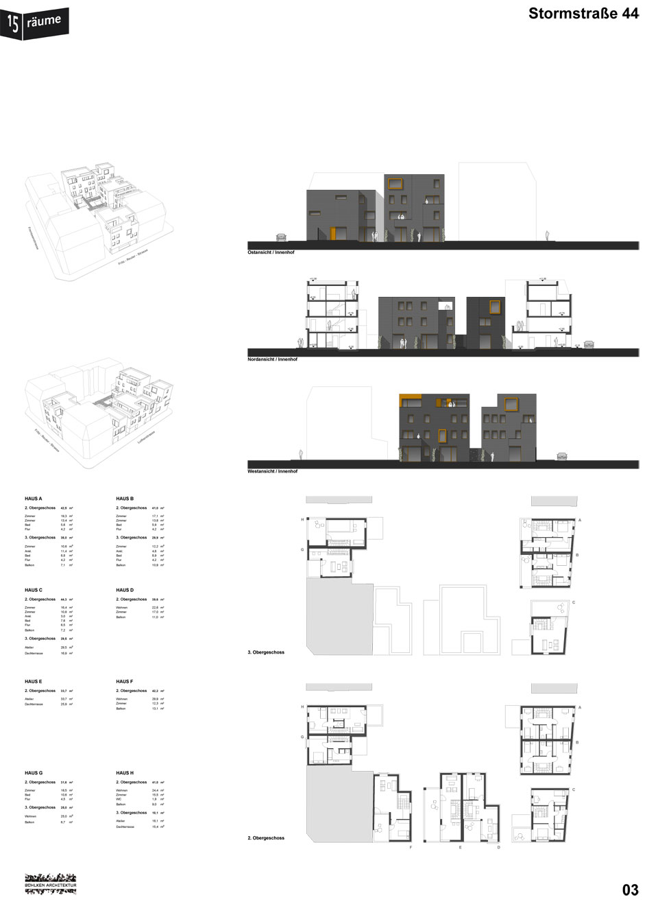
Entwurf Stormsrasse Ansichten
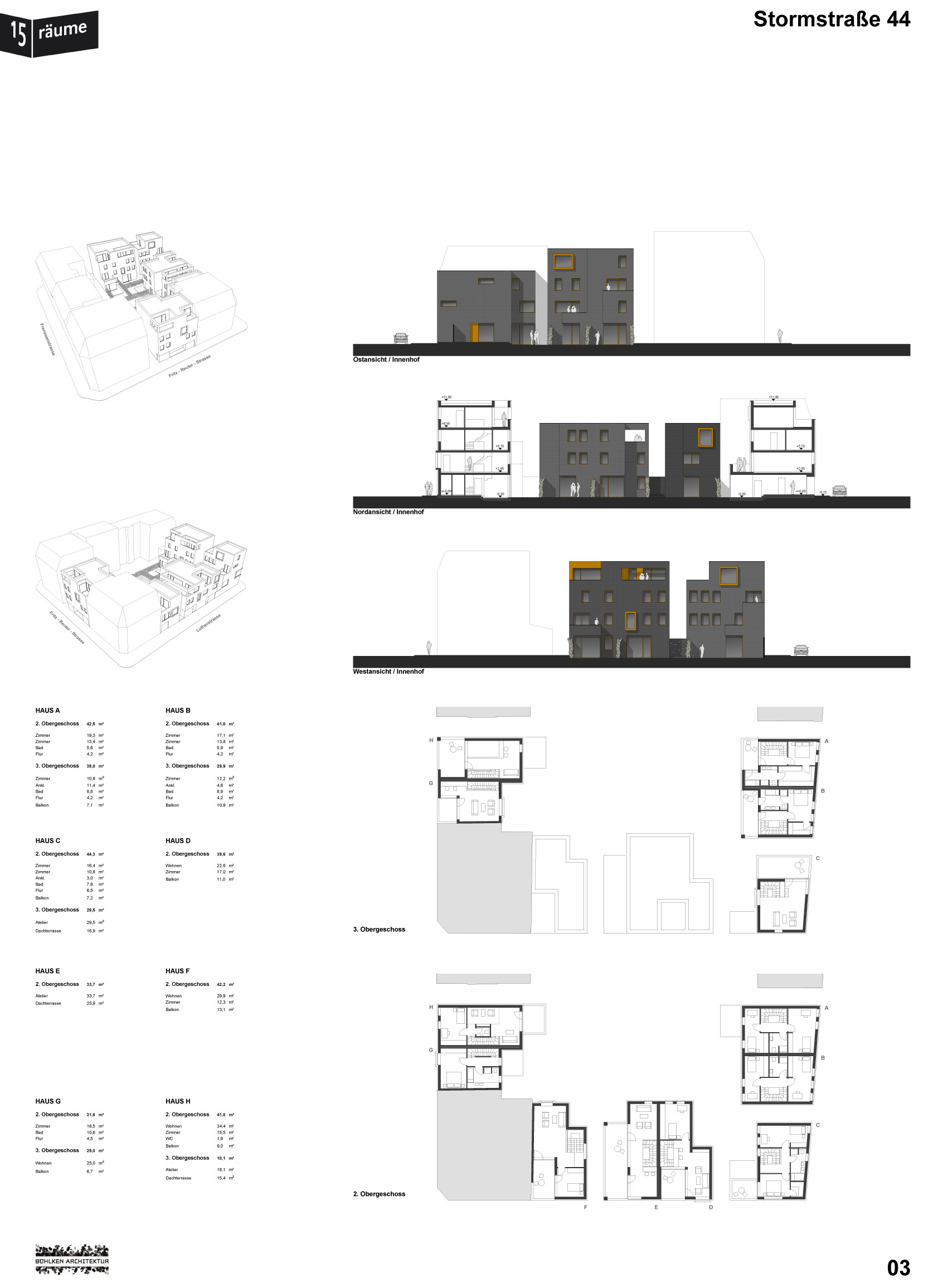
Entwurf Stormsrasse Ansichten